درباره پروژه برج های دو قلو PACIFIC ROYAL
پروژه ایران (تعاونی مسکن کارکنان بانک ملی ایران)، پروژهای در زمینی به مساحت ده هزار متر مربع در 2 بلوک هر یک 22 طبقه (5 طبقه منفی، لابی همکف و 16 طبقه مسکونی) در منطقه 22 واقع در بلوار علوم و فنون (کوهک) توسط شرکت ابنیه آفرین ریونیز در حال احداث است.
- تعداد واحدهای مسکونی 164 واحد می باشد.
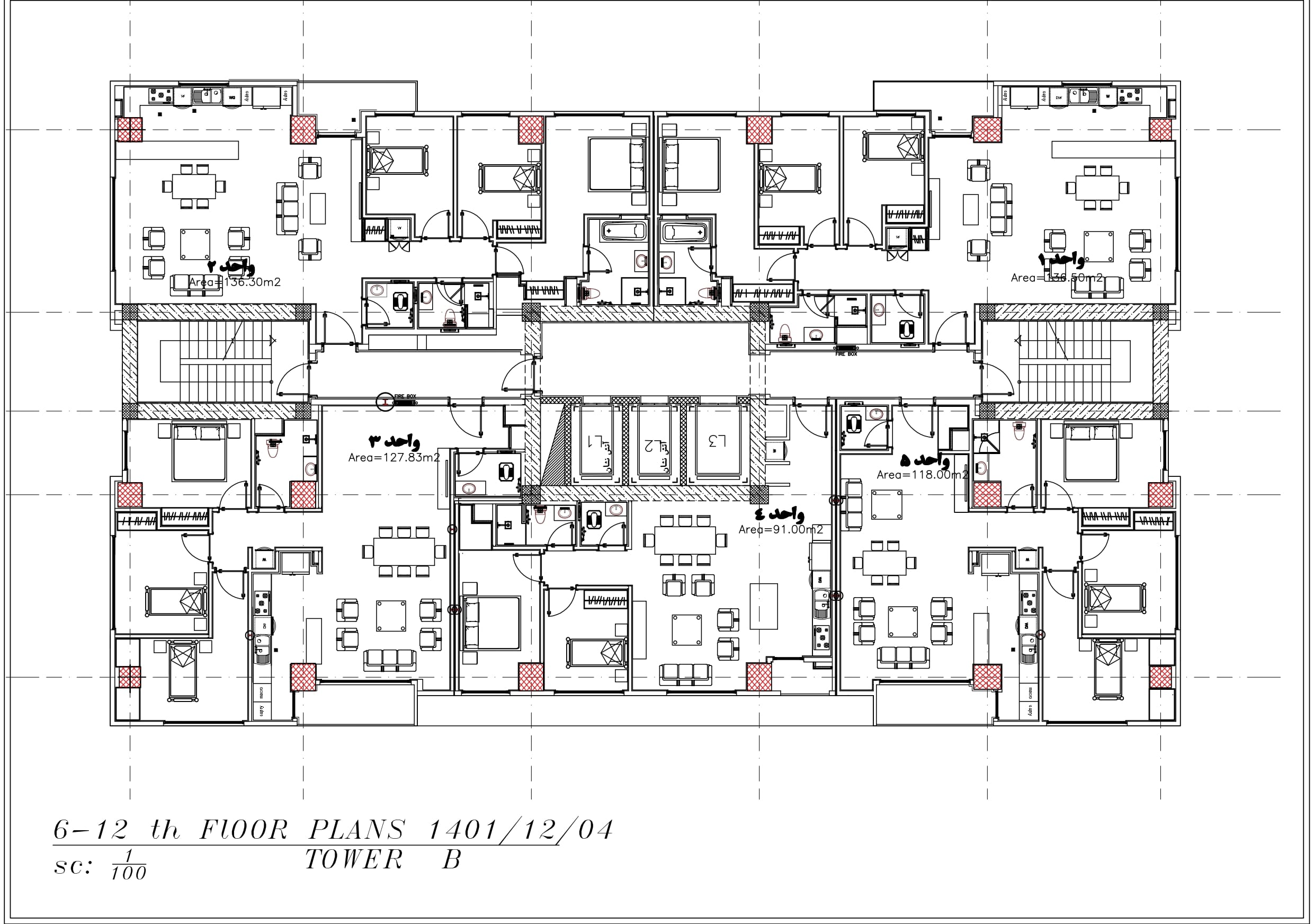
- بلوک B از طبقات یک تا دوازده 5 واحدی می باشد.
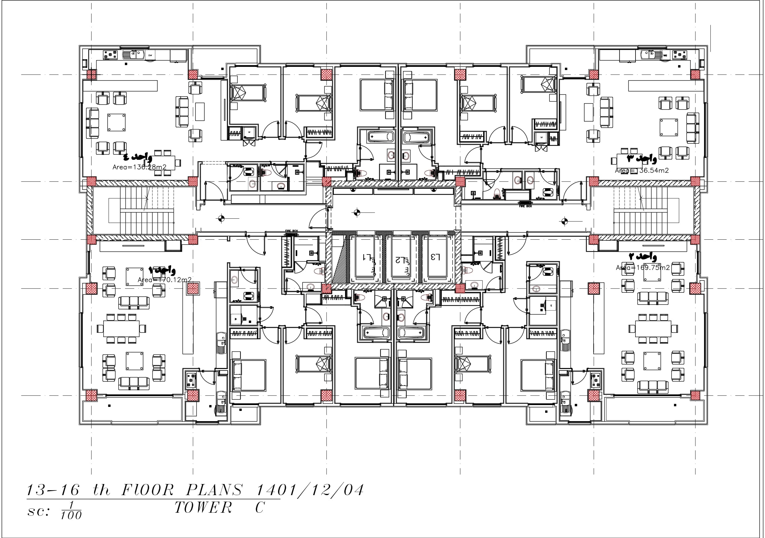
- بلوک C از طبقات یک تا دوازده 6 واحدی می باشد.
- از طبقات دوازده به بالا هر دو بلوک 4 واحدی می باشد.
- متراژ طبقات مسکونی حدود 20/000 متر مربع می باشد.
اطلاعات کلی پروژه
|
جدول مساحت و ابعاد پروژه |
|
|
متراژ كلی |
37670 متر مربع |
|
تعداد بلوك و طبقات |
2 بلوك هر یك 22 طبقه |
|
متراژ طبقات زیرزمین |
13255 متر مربع |
|
متراژ طبقه همکف |
1376 متر مربع |
|
متراژ ناخالص طبقات مسکونی |
23039 متر مربع |
|
متراژ خالص طبقات مسکونی |
19978 متر مربع |
|
متراژ هلی پد |
900 متر مربع |
|
تعداد واحد های مسکونی |
164 واحد |
اطلاعات کاربری طبقات برج ها
|
جدول کاربری طبقات |
|
|
زیرزمین پنجم |
مجموعه ورزشی(استخر، جكوزی،سونا خشك و بخار، سالن بدنسازی، |
|
زیرزمین چهارم |
پاركینگ + انباری |
|
زیرزمین سوم |
پاركینگ + انباری |
|
زیرزمین دوم |
پاركینگ + انباری |
|
زیرزمین اول |
واحد سرایداری + اتاق برق + اتاق مخابرات + پاركینگ + انباری |
|
همكف |
لابی + اتاق مدیریت + اتاق فرماندهی بحران + |
|
اول تا شانزدهم |
مسكونی |
گالری تصاویر پروژه PACIFIC ROYAL
برج های PACIFIC ROYAL
محل پروژه PACIFIC ROYAL
برج های دو قلو PACIFIC ROYAL در منطقه 22 تهران، ضلع جنوب شرقی دریاچه چیتگر واقع در بلوار علوم و فنون (کوهک) می باشند.

